Ponad 7 mln zł na rozbudowę laboratorium kompatybilności elektromagnetycznej
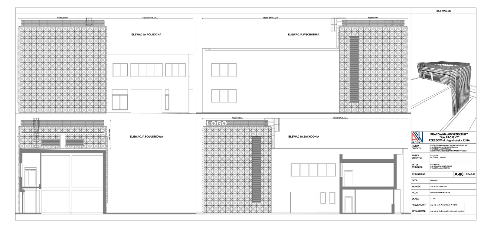
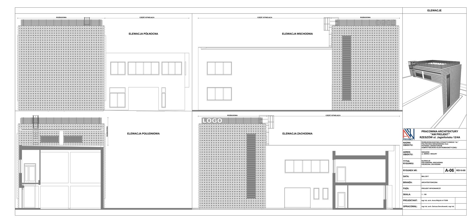
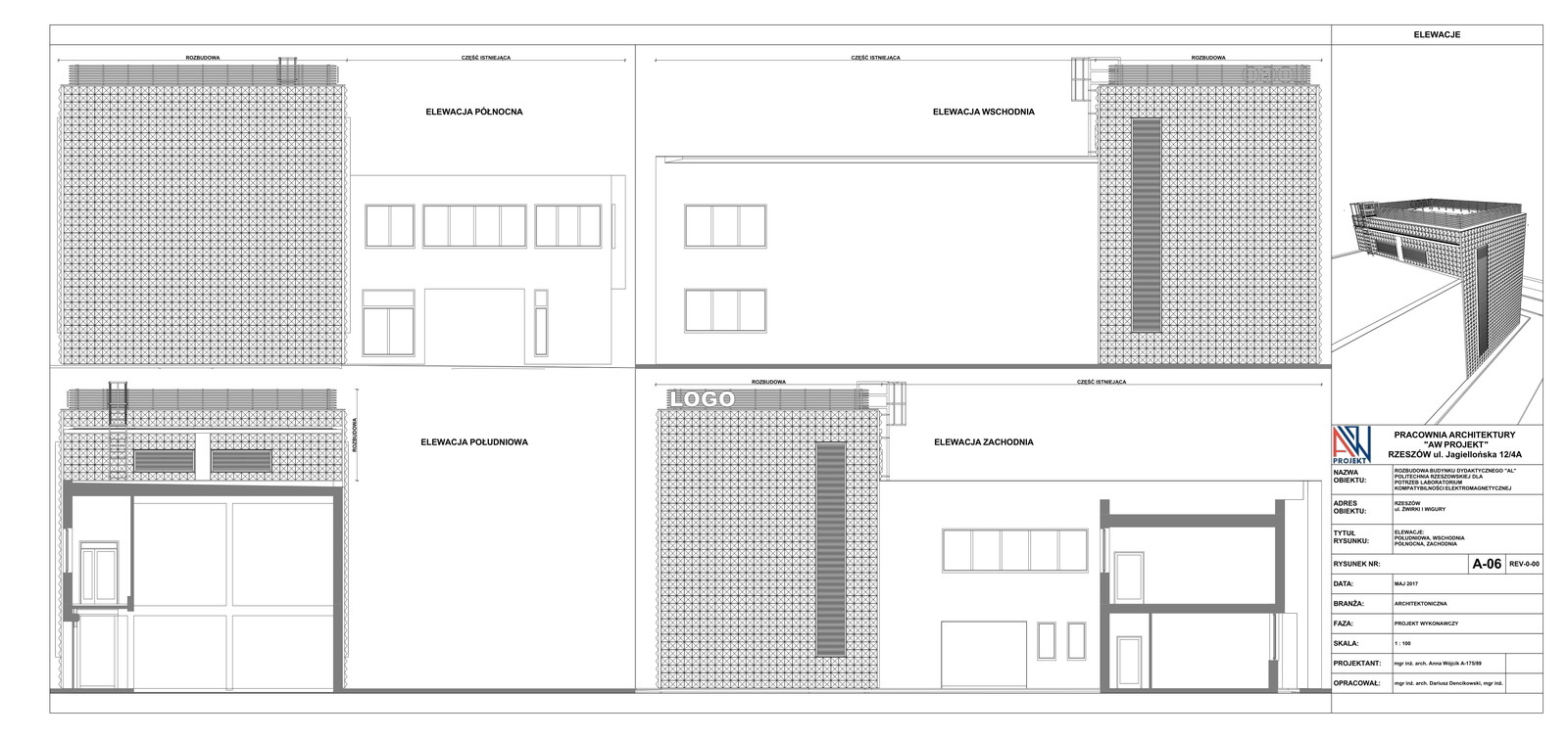
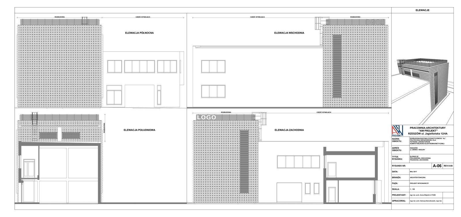
Politechnika Rzeszowska rozbudowuje budynek AL przy ul. Wincentego Pola w Rzeszowie, w którym zlokalizowane jest laboratorium naukowo-badawcze kompatybilności elektromagnetycznej (EMC) funkcjonujące w Katedrze Systemów Elektronicznych i Telekomunikacyjnych na Wydziale Elektrotechniki i Informatyki.
Rozbudowa budynku pozwala na zwiększenie potencjału badawczego laboratorium w zakresie testowania pokładowych systemów elektrycznych i elektronicznych instalowanych w statkach powietrznych. W realizację projektu na wydziale zaangażowane są: Katedra Systemów Elektronicznych i Telekomunikacyjnych, a także Katedra Elektrotechniki i Podstaw Informatyki, w której funkcjonuje laboratorium przepięciowych badań awioniki.
Prace związane ze zwiększeniem możliwości badawczych Politechniki Rzeszowskiej są realizowane w ramach umowy o dofinansowaniu projektu „Polska Sieć Laboratoriów EMC” (EMC-LabNet). Projekt ten jest współfinansowany ze środków Europejskiego Funduszu Rozwoju Regionalnego, jego łączna wartość to blisko 67 mln zł, a udział PRz wynosi 7,6 mln zł. Zakończenie projektu jest planowane na koniec 2021 roku.
Sygnatariuszami umowy są członkowie Konsorcjum Naukowo-Technologicznego utworzonego przez: Politechnikę Wrocławską (Lider), Ośrodek Badawczo-Rozwojowy Centrum Techniki Morskiej S.A. z Gdyni, Politechnikę Rzeszowską, Politechnikę Białostocką, Wojskową Akademię Techniczną oraz Ośrodek Przetwarzania Informacji – Państwowy Instytut Badawczy (nadzorowany przez Ministerstwo Nauki i Szkolnictwa Wyższego).
Podpisana umowa stanowi efekt wcześniejszych działań podjętych przez Konsorcjum. W ich wyniku Minister Nauki i Szkolnictwa Wyższego, opierając się na rekomendacjach zespołu doradczego oraz na ocenach krajowych i zagranicznych recenzentów, w 2014 roku umieścił projekt EMC-LabNet na tzw. Polskiej Mapie Drogowej Infrastruktury Badawczej. Tym samym został on uznany za strategiczny dla nauki i gospodarki, co umożliwiło zgłoszenie przez Konsorcjum wniosku do Konkursu nr 1/4.2/2015, w wyniku którego projekt EMC-LabNet uzyskał rekomendację do dofinansowania.
Głównym celem projektu EMC-LabNet jest rozbudowa i uzupełnienie zaplecza technicznego i bazy laboratoryjnej członków Konsorcjum oraz utworzenie strategicznej, unikatowej sieci wyspecjalizowanych laboratoriów, świadczących usługi z zakresu kompatybilności elektromagnetycznej.
- Dzięki takim przedsięwzięciom Politechnika Rzeszowska dołącza do grona elitarnych uczelni w Polsce w zakresie badań i inteligentnego rozwoju - mówi dr hab. inż. Piotr Jankowski-Mihułowicz, prof. PRz, kierownik Katedry Systemów Elektronicznych i Telekomunikacyjnych. - W efekcie, w kompleksie laboratoriów KSEiT uzyskamy pełne możliwości pomiarów emisji zaburzeń elektromagnetycznych generowanych przez systemy awioniki zgodnie z wymaganiami standardu RTCA/DO-160, a także będziemy mieli możliwość prowadzenia badań systemów antenowych instalowanych w statkach powietrznych. Z kolei laboratorium przepięciowych badań awioniki zwiększy swój potencjał badawczy w zakresie generacji impulsowych narażeń elektromagnetycznych jakie są konsekwencją potencjalnych uderzeń pioruna w kadłub statku powietrznego.
Obecnie trwa procedura przetargowa dotycząca rozbudowy budynku AL. Prace mają się rozpocząć na przełomie lutego i marca.





